该项目由Bedaux de Brouwer和i29共同设计,他们用纯粹的设计和朴素的材料创造出高品质且不做作的别墅。
▼项目概览

这座宽敞的别墅专为四口之家设计,所有房间均水平相连。房屋宽敞且可持续,模糊了室内外的界限。外立面全部使用黑砖,遮挡了后部景观,突显出旁边的自然环境。建筑主立面的右侧种有大量绿植,屋顶设有地热储能器、热泵和太阳能集热器,达到有效节能的效果,实现了室内外空间的自然相接。
▼外观,黑砖立面

▼主立面的右侧种有大量绿植

▼利用百叶遮阳

▼细部


生活区中心是郁郁葱葱的庭院,通过地板和天花之间的全玻璃推拉门可以看到旁边的庭院和泳池。
▼泳池


▼后院

▼泳池细部

房屋视野开阔、立面通透,而整体布局巧妙,大量绿植给人一种私密感。其品质体现在内外空间和谐相接的细节上,室内具有大量木制表面,使不同区域相连,其中,橱柜、衣橱、墙壁、推拉门和床统一使用相同的木材和饰面。橱柜、厨房设施和家具根据建筑布局定制。建筑与室内设计浑然一体。
▼入口

▼入口空间,设置壁炉


▼客厅,通透而私密


▼客厅与厨房之间设有庭院



▼厨房,kitchen © Ewout Huibers

▼定制岛台与橱柜



▼通往卧室的走廊,旁边是庭院

▼走廊细长而明亮


▼屋内可以看向庭院


这里是一个完美的休憩地,使人可以在室内外消磨时光。在丰富的自然环境之中,材料素净的色调创造出轻松的氛围。
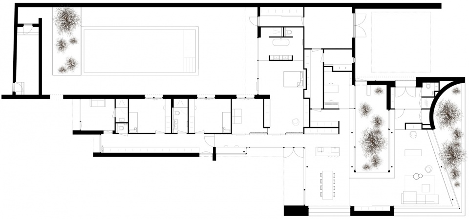
▼平面

我们致力于保护作者版权,部分作品来自互联网.无法核实真实出处,如涉及侵权,请直接联系我们删除.谢谢!







